Ask About the Rose Village Season of Savings - Up to $15,000 + $5,000 in Bonus Bucks   Season of Savings 2025

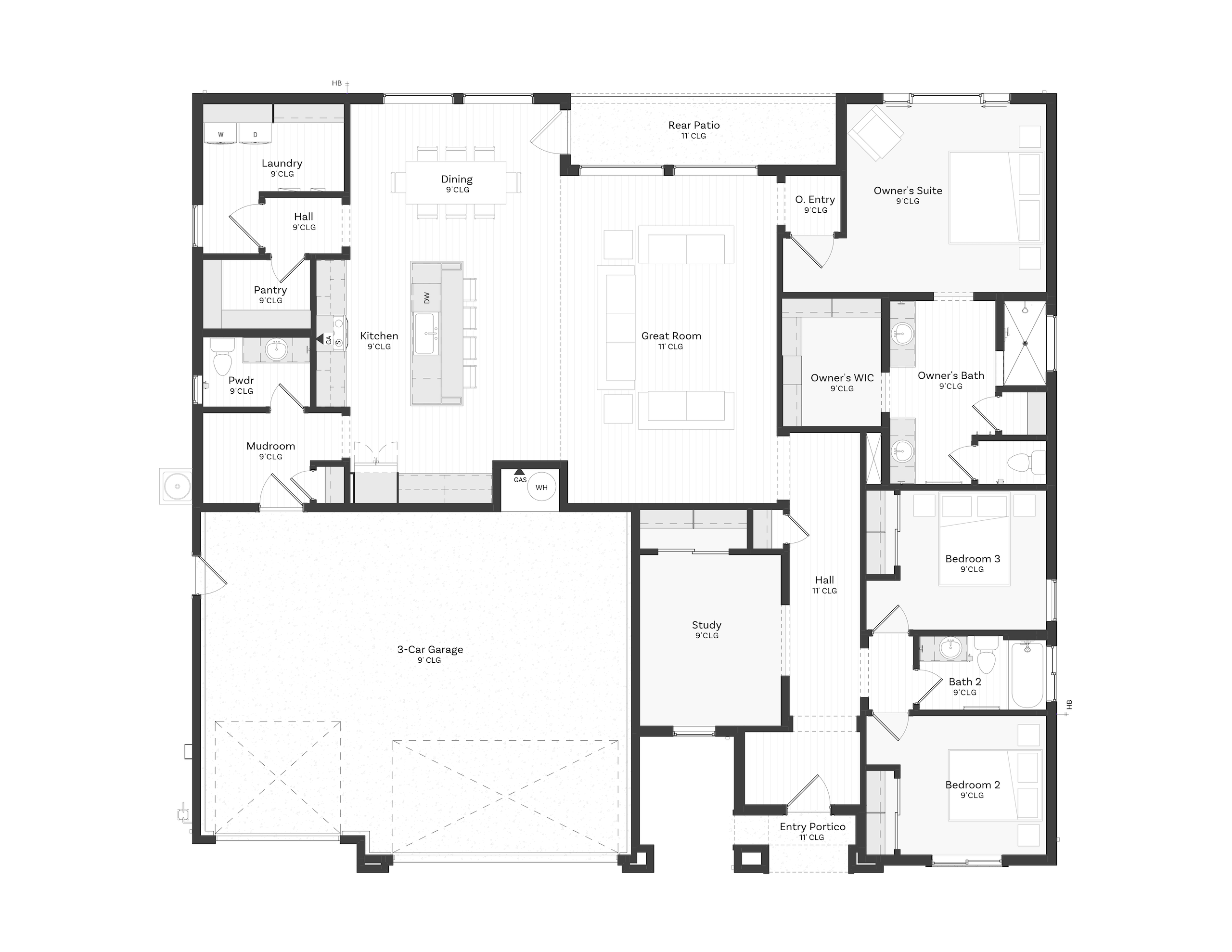
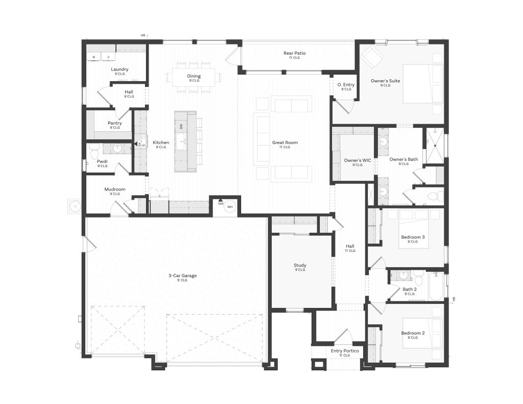
The Gemini 3-4 Beds  /  2.5 Baths  /  3 Car Garage  /  2,270 SqFt

  Call For Price

Introducing the Gemini floor plan! This beautiful open floor plan offers 2,270 square feet of living space. This home offers three bedrooms, a study, two full bathrooms, one half bathroom, and incredible living spaces.

The kitchen is a dream, offering plenty of counter space, a large island with a built-in sink, a walk-in pantry, enough cabinets and drawers to store all kitchen appliances. The dining area has direct access to the backyard, perfect for hosting all of your friends outside. The entry way and family room boasts 11 foot ceilings making the home feel spacious and luxurious.

The owner’s suite offers a plentitude of natural light, the ensuite bathroom includes a walk-in closet, private toilet, dual vanities, a large shower, a comfortable bathtub, and convenient linen closet.

Gemini | Spanish | Palette 1
Gemini | Spanish | Palette 2
Gemini | Spanish | Palette 3
Gemini | Tuscan | Palette 1
Gemini | Tuscan | Palette 2
Gemini | Tuscan | Palette 3
Gemini | Modern Prairie | Palette 1
Gemini | Modern Prairie | Palette 2
Gemini | Modern Prairie | Palette 3
Gemini | Craftsman | Palette 1
Gemini | Craftsman | Palette 2
Gemini | Craftsman | Palette 3
Gemini | Farmhouse | Palette 1
Gemini | Farmhouse | Palette 2
Gemini | Farmhouse | Palette 3
Gemini Floor Plan
  • 3353 W Bonita Hurricane Utah

Pictures are representative only. Prices, Plans, specifications, standard features, availability are subject to change without notice. Square footage calculations are made based on plan dimensions only and may vary from finished square footage of the home as built.

    Request a Tour

    Please enter the text
    captcha

    Get in Touch:   Call   Text   Email